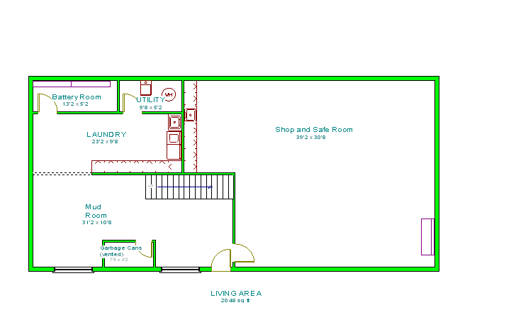
Basement

Return to;

Home
Pictures
Inventory
Plans
Projects